电脑桌面
添加蜗牛文库到电脑桌面
安装后可以在桌面快捷访问

城市复杂环境下隧道基坑围护结构的设计与监测研究.pdfVIP免费

城市复杂环境下隧道基坑围护结构的设计与监测研究.pdf_第1页
城市复杂环境下隧道基坑围护结构的设计与监测研究.pdf_第2页
城市复杂环境下隧道基坑围护结构的设计与监测研究.pdf_第3页
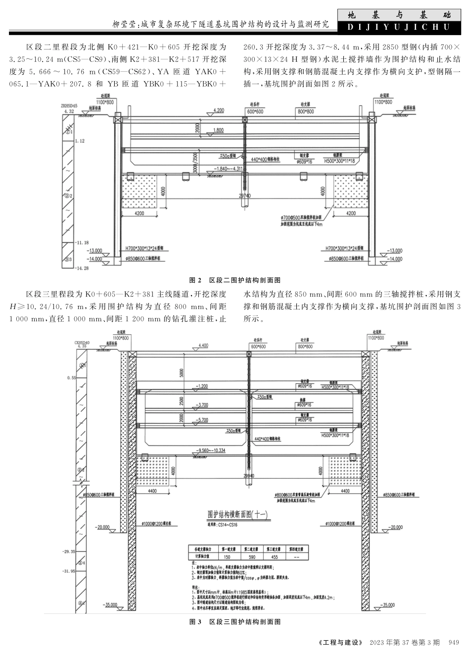
柳莹莹:城市复杂环境下隧道基坑围护结构的设计与监测研究地基与基础DIJIYUJICHU«工程与建设»2023年第37卷第3期947收稿日期:2022G09G30;修改日期:2022G12G08作者简介:柳莹莹(1983—),女,山东烟台人,工程师.城市复杂环境下隧道基坑围护结构的设计与监测研究柳莹莹(山东昆嵛路桥工程有限公司,山东烟台264000)摘要:市政隧道工程是有效缓解中心城区交通拥堵的手段之一.为解决城区复杂环境下隧道基坑工程的结构设计和变形问题,本文以江阴市长山大道敔山湖隧道基坑工程为研究对象,运用分段设计的方法对隧道深基坑工程进行围护结构设计,并采用现场实测的手段对隧道基坑工程开挖过程中的变形和水位进行监测.结果表明:对隧道基坑采用分段开挖,区段一采用1∶1放坡,坡面采用挂网喷混凝土防护,区段二采用H型钢水泥土搅拌墙为围护和止水结构,钢筋混凝土支撑、钢支撑为内支撑,区段三采用钻孔灌注桩为围护,钢筋混凝土支撑、钢支撑为内支撑,并辅于三轴搅拌桩为止水结构;区段二最大水平位移为27.80m,最大水平位移发生在围护结构深度8.0m处,最大水平位移为38.89m,发生在桩身深度14.0m处,选取的结构形式和设计深度达到了变形控制效果;水位监测表明设计的围护结构能够有效地起到止水帷幕的效果,对基坑降水的控制良好,可为隧道深基坑的开挖提供了良好的隔水条件.关键词:隧道深基坑;城市环境;围护结构设计;明挖顺作法;基坑监测;敔山湖隧道中图分类号:U452.2文献标志码:A文章编号:1673G5781(2023)03G0947G040引言城镇化的加速发展不仅使得城区人口密度急速提升,而且也给居民的出行带来挑战,中心城区紧张的土地资源使得交通拥堵现象日益加剧[1].市政地下隧道大幅拓展了出行空间,提高了出行效率,在缓解交通出行问题中发挥了重要的作用,成为城市立体交通体系中极为重要的组成部分[2].与山岭隧道不同,城区的隧道工程为了节约工期和工程造价,减少地表交通时间,往往选择明挖法施工,但城区复杂的周边环境又对隧道施工安全、施工工艺提出了更为严格的要求[3G4].隧道基坑围护结构形式的选择与设计直接影响着工程的安全和造价;另一方面,不同的围护结构形式具有不同的结构刚度,会造成基坑变形量大小不一,进而影响城区敏感的周边环境,造成不良社会影响[5].本文尝试依托江阴市长山大道敔山湖隧道,运用分段设计的方法对隧道深基坑工程进行围护结构设计,并采用现场实测的手段对隧道基坑...

1、当您付费下载文档后,您只拥有了使用权限,并不意味着购买了版权,文档只能用于自身使用,不得用于其他商业用途(如 [转卖]进行直接盈利或[编辑后售卖]进行间接盈利)。
2、本站所有内容均由合作方或网友上传,本站不对文档的完整性、权威性及其观点立场正确性做任何保证或承诺!文档内容仅供研究参考,付费前请自行鉴别。
3、如文档内容存在违规,或者侵犯商业秘密、侵犯著作权等,请点击“违规举报”。

碎片内容

蜗牛文库的最新文档

二年级数学下册其中检测卷二年级数学下册其中检测卷附答案#期中测试卷.pdf
10.00金币
0下载
二年级数学下册期末质检卷(苏教版)二年级数学下册期末质检卷(苏教版)#期末复习 #期末测试卷 #二年级数学 #二年级数学下册#关注我持续更新小学知识.pdf
10.00金币
0下载
二年级数学下册期末混合运算专项练习二年级数学下册期末混合运算专项练习#二年级#二年级数学下册#关注我持续更新小学知识 #知识分享 #家长收藏孩子受益.pdf
10.00金币
1下载
二年级数学下册年月日三类周期问题解题方法二年级数学下册年月日三类周期问题解题方法#二年级#二年级数学下册#知识分享 #关注我持续更新小学知识 #家长收藏孩子受益.pdf
10.00金币
0下载
二年级数学下册解决问题专项训练二年级数学下册解决问题专项训练#专项训练#解决问题#二年级#二年级数学下册#知识分享.pdf
10.00金币
1下载
二年级数学下册还原问题二年级数学下册还原问题#二年级#二年级数学#关注我持续更新小学知识 #知识分享 #家长收藏孩子受益.pdf
10.00金币
1下载
二年级数学下册第六单元考试卷家长打印出来给孩子测试测试争取拿到高分!#小学二年级试卷分享 #二年级第六单考试数学 #第六单考试#二年级数学下册.pdf
10.00金币
0下载
二年级数学下册必背顺口溜口诀汇总二年级数学下册必背顺口溜口诀汇总#二年级#二年级数学下册 #知识分享 #家长收藏孩子受益 #关注我持续更新小学知识.pdf
10.00金币
0下载
二年级数学下册《重点难点思维题》两大问题解决技巧和方法巧算星期几解决周期问题还原问题强化思维训练老师精心整理家长可以打印出来给孩子练习#家长收藏孩子受益 #学霸秘籍 #思维训练 #二年级 #知识点总结.pdf
10.00金币
0下载
二年级数学下册 必背公式大全寒假提前背一背开学更轻松#二年级 #二年级数学 #二年级数学下册 #寒假充电计划 #公式.pdf
10.00金币
0下载
蜗牛文库+ 关注
实名认证
内容提供者

提供各种专业文档内容

确认删除?
QQ
  • QQ点击这里给我发消息
微信客服
  • 微信客服
回到顶部