电脑桌面
添加蜗牛文库到电脑桌面
安装后可以在桌面快捷访问

028.井巷工程(三).pdfVIP免费

028.井巷工程(三).pdf_第1页
028.井巷工程(三).pdf_第2页
028.井巷工程(三).pdf_第3页
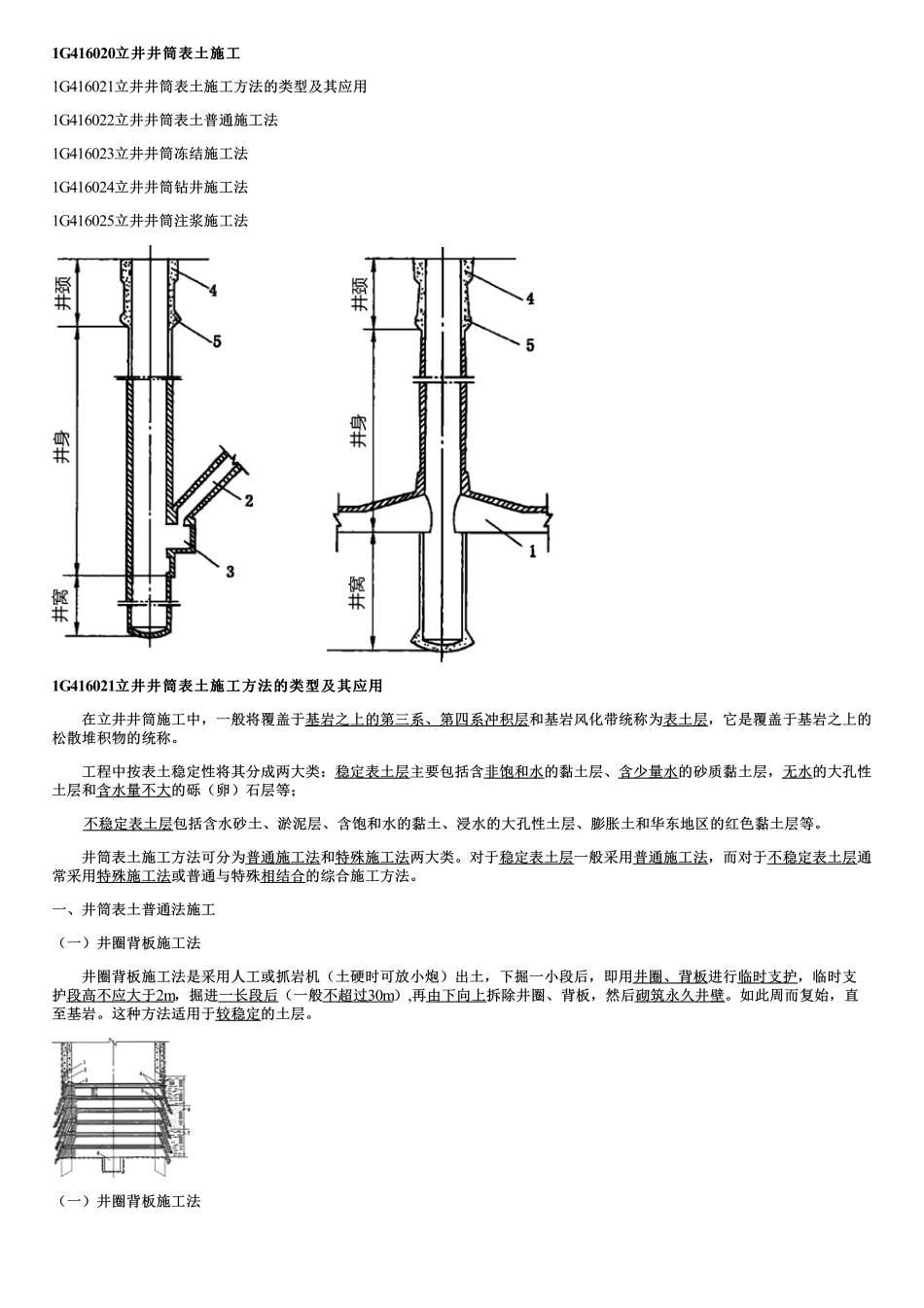
1G416020立井井筒表土施工立井井筒表土施工1G416021立井井筒表土施工方法的类型及其应用1G416022立井井筒表土普通施工法1G416023立井井筒冻结施工法1G416024立井井筒钻井施工法1G416025立井井筒注浆施工法1G416021立井井筒表土施工方法的类型及其应用立井井筒表土施工方法的类型及其应用在立井井筒施工中,一般将覆盖于基岩之上的第三系、第四系冲积层和基岩风化带统称为表土层,它是覆盖于基岩之上的松散堆积物的统称。工程中按表土稳定性将其分成两大类:稳定表土层主要包括含非饱和水的黏土层、含少量水的砂质黏土层,无水的大孔性土层和含水量不大的砾(卵)石层等;不稳定表土层包括含水砂土、淤泥层、含饱和水的黏土、浸水的大孔性土层、膨胀土和华东地区的红色黏土层等。井筒表土施工方法可分为普通施工法和特殊施工法两大类。对于稳定表土层一般采用普通施工法,而对于不稳定表土层通常采用特殊施工法或普通与特殊相结合的综合施工方法。一、井筒表土普通法施工(一)井圈背板施工法井圈背板施工法是采用人工或抓岩机(土硬时可放小炮)出土,下掘一小段后,即用井圈、背板进行临时支护,临时支护段高不应大于2m,掘进一长段后(一般不超过30m),再由下向上拆除井圈、背板,然后砌筑永久井壁。如此周而复始,直至基岩。这种方法适用于较稳定的土层。(一)井圈背板施工法(二)吊挂井壁施工法吊挂井壁施工法是用于稳定性较差的土层中的一种短段掘砌施工方法。为保持土的稳定性,减少土层的裸露时间,段高一般取0.5~1.5m。按土层条件,段高内还可分别采用台阶式或分段分块,并配以超前小井降低水位的挖掘方法。吊挂井壁施工中,因段高小,不必进行临时支护。但由于段高小,每段井壁与土层的接触面积小,土对井壁的围抱力小,为了防止井壁在混凝土尚未达到设计强度前失去自身承载能力,引起井壁拉裂或脱落,必须在井壁内设置钢筋,并与上段井壁吊挂。这种施工方法可用于流动性小、水压不大于0.2MPa的砂层和透水性强的卵石层,以及岩石风化带。吊挂井壁法使用的设备简单,施工安全。但它的工序转换频繁,井壁接槎多,封水性能差。故常在通过整个表土层后,自下而上复砌第二层井壁。为此,需按井筒设计规格,适当扩大掘进断面。(三)板桩施工法对于厚度不大的不稳定表土层,在开挖之前,可先用人工或打桩机在工作面或地面沿井筒荒径依次打入一圈板桩,形成一个四周密封的圆筒,用以支承井壁,并在它的保护下进行掘进。板桩材料可采用木材和金...

1、当您付费下载文档后,您只拥有了使用权限,并不意味着购买了版权,文档只能用于自身使用,不得用于其他商业用途(如 [转卖]进行直接盈利或[编辑后售卖]进行间接盈利)。
2、本站所有内容均由合作方或网友上传,本站不对文档的完整性、权威性及其观点立场正确性做任何保证或承诺!文档内容仅供研究参考,付费前请自行鉴别。
3、如文档内容存在违规,或者侵犯商业秘密、侵犯著作权等,请点击“违规举报”。

碎片内容

蜗牛文库的最新文档

二年级数学下册其中检测卷二年级数学下册其中检测卷附答案#期中测试卷.pdf
10.00金币
0下载
二年级数学下册期末质检卷(苏教版)二年级数学下册期末质检卷(苏教版)#期末复习 #期末测试卷 #二年级数学 #二年级数学下册#关注我持续更新小学知识.pdf
10.00金币
0下载
二年级数学下册期末混合运算专项练习二年级数学下册期末混合运算专项练习#二年级#二年级数学下册#关注我持续更新小学知识 #知识分享 #家长收藏孩子受益.pdf
10.00金币
1下载
二年级数学下册年月日三类周期问题解题方法二年级数学下册年月日三类周期问题解题方法#二年级#二年级数学下册#知识分享 #关注我持续更新小学知识 #家长收藏孩子受益.pdf
10.00金币
0下载
二年级数学下册解决问题专项训练二年级数学下册解决问题专项训练#专项训练#解决问题#二年级#二年级数学下册#知识分享.pdf
10.00金币
1下载
二年级数学下册还原问题二年级数学下册还原问题#二年级#二年级数学#关注我持续更新小学知识 #知识分享 #家长收藏孩子受益.pdf
10.00金币
1下载
二年级数学下册第六单元考试卷家长打印出来给孩子测试测试争取拿到高分!#小学二年级试卷分享 #二年级第六单考试数学 #第六单考试#二年级数学下册.pdf
10.00金币
0下载
二年级数学下册必背顺口溜口诀汇总二年级数学下册必背顺口溜口诀汇总#二年级#二年级数学下册 #知识分享 #家长收藏孩子受益 #关注我持续更新小学知识.pdf
10.00金币
0下载
二年级数学下册《重点难点思维题》两大问题解决技巧和方法巧算星期几解决周期问题还原问题强化思维训练老师精心整理家长可以打印出来给孩子练习#家长收藏孩子受益 #学霸秘籍 #思维训练 #二年级 #知识点总结.pdf
10.00金币
0下载
二年级数学下册 必背公式大全寒假提前背一背开学更轻松#二年级 #二年级数学 #二年级数学下册 #寒假充电计划 #公式.pdf
10.00金币
0下载
蜗牛文库+ 关注
实名认证
内容提供者

提供各种专业文档内容

确认删除?
QQ
  • QQ点击这里给我发消息
微信客服
  • 微信客服
回到顶部