电脑桌面
添加蜗牛文库到电脑桌面
安装后可以在桌面快捷访问

WM_30、1K412000第15讲 桩基础施工方法与设备选择(二).pdfVIP免费

WM_30、1K412000第15讲 桩基础施工方法与设备选择(二).pdf_第1页
WM_30、1K412000第15讲 桩基础施工方法与设备选择(二).pdf_第2页
WM_30、1K412000第15讲 桩基础施工方法与设备选择(二).pdf_第3页
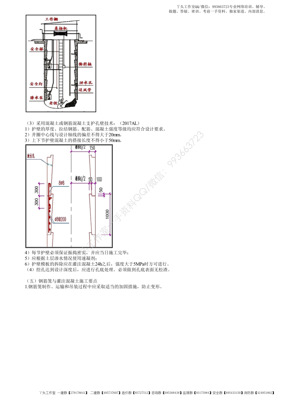
(四)干作业成孔1.长螺旋钻孔(1)钻机定位后,应进行复检,钻头与桩位点偏差不得大于20mm;开孔时下钻速度应缓慢;钻进过程中,不宜反转或提升钻杆。(2)在钻进过程中遇到卡钻、钻机摇晃、偏斜或发生异常声响时,应立即停钻,查明原因,采取相应措施后方可继续作业。(3)钻至设计标高后,应先泵入混凝土并停顿10~20s,再缓慢提升钻杆。提钻速度应根据土层情况确定,并保证管内有一定高度的混凝土。(4)混凝土压灌结束后,应立即将钢筋笼插至设计深度,并及时清除钻杆及泵(软)管内残留混凝土。【此处动图效果见视频】2.钻孔扩底(1)钻杆应保持垂直稳固,位置准确,防止因钻杆晃动引起孔径扩大。(2)钻孔扩底桩施工扩底孔部分虚土厚度应符合设计要求。丫头工作室一手资料QQ/微信:993663723丫头工作室QQ/微信:993663723专业网络培训、辅导、做题、答疑、密训、考前一手资料、独家渠道、内部消息。丫头工作室一建群【279178641】二建群【485737607】造价群【85727512】咨询群【695368438】监理群【93175984】安全群【695433150】消防群【424951862】(3)灌注混凝土时,第一次应灌到扩底部位的顶面,随即振捣密实;灌注桩顶以下5m范围内混凝土时,应随灌注随振动,每次灌注高度不大于1.5m。3.人工挖孔桩(1)人工挖孔桩必须在保证施工安全前提下选用。(2)人工挖孔桩的孔径(不含孔壁)不得小于0.8m,且不宜大于2.5m;挖孔深度不宜超过25m。丫头工作室一手资料QQ/微信:993663723丫头工作室QQ/微信:993663723专业网络培训、辅导、做题、答疑、密训、考前一手资料、独家渠道、内部消息。丫头工作室一建群【279178641】二建群【485737607】造价群【85727512】咨询群【695368438】监理群【93175984】安全群【695433150】消防群【424951862】(3)采用混凝土或钢筋混凝土支护孔壁技术:(2017AL)1)护壁的厚度、拉结钢筋、配筋、混凝土强度等级均应符合设计要求。2)井圈中心线与设计轴线的偏差不得大于20mm。3)上下节护壁混凝土的搭接长度不得小于50mm。4)每节护壁必须保证振捣密实,并应当日施工完毕;5)应根据土层渗水情况使用速凝剂;6)护壁模板的拆除应在灌注混凝土24h之后,强度大于5MPa时方可进行。(4)挖孔达到设计深度后,应进行孔底处理。必须做到孔底表面无松渣。(五)钢筋笼与灌注混凝土施工要点1.钢筋笼制作、运输和吊装过程中应采取适当的加固措施,防止变形。丫头工作室一手资料QQ/微信:993663723丫头工作室QQ/微信:...

1、当您付费下载文档后,您只拥有了使用权限,并不意味着购买了版权,文档只能用于自身使用,不得用于其他商业用途(如 [转卖]进行直接盈利或[编辑后售卖]进行间接盈利)。
2、本站所有内容均由合作方或网友上传,本站不对文档的完整性、权威性及其观点立场正确性做任何保证或承诺!文档内容仅供研究参考,付费前请自行鉴别。
3、如文档内容存在违规,或者侵犯商业秘密、侵犯著作权等,请点击“违规举报”。

碎片内容

蜗牛文库的最新文档

二年级数学下册其中检测卷二年级数学下册其中检测卷附答案#期中测试卷.pdf
10.00金币
0下载
二年级数学下册期末质检卷(苏教版)二年级数学下册期末质检卷(苏教版)#期末复习 #期末测试卷 #二年级数学 #二年级数学下册#关注我持续更新小学知识.pdf
10.00金币
0下载
二年级数学下册期末混合运算专项练习二年级数学下册期末混合运算专项练习#二年级#二年级数学下册#关注我持续更新小学知识 #知识分享 #家长收藏孩子受益.pdf
10.00金币
1下载
二年级数学下册年月日三类周期问题解题方法二年级数学下册年月日三类周期问题解题方法#二年级#二年级数学下册#知识分享 #关注我持续更新小学知识 #家长收藏孩子受益.pdf
10.00金币
0下载
二年级数学下册解决问题专项训练二年级数学下册解决问题专项训练#专项训练#解决问题#二年级#二年级数学下册#知识分享.pdf
10.00金币
1下载
二年级数学下册还原问题二年级数学下册还原问题#二年级#二年级数学#关注我持续更新小学知识 #知识分享 #家长收藏孩子受益.pdf
10.00金币
1下载
二年级数学下册第六单元考试卷家长打印出来给孩子测试测试争取拿到高分!#小学二年级试卷分享 #二年级第六单考试数学 #第六单考试#二年级数学下册.pdf
10.00金币
0下载
二年级数学下册必背顺口溜口诀汇总二年级数学下册必背顺口溜口诀汇总#二年级#二年级数学下册 #知识分享 #家长收藏孩子受益 #关注我持续更新小学知识.pdf
10.00金币
0下载
二年级数学下册《重点难点思维题》两大问题解决技巧和方法巧算星期几解决周期问题还原问题强化思维训练老师精心整理家长可以打印出来给孩子练习#家长收藏孩子受益 #学霸秘籍 #思维训练 #二年级 #知识点总结.pdf
10.00金币
0下载
二年级数学下册 必背公式大全寒假提前背一背开学更轻松#二年级 #二年级数学 #二年级数学下册 #寒假充电计划 #公式.pdf
10.00金币
0下载
蜗牛文库+ 关注
实名认证
内容提供者

提供各种专业文档内容

确认删除?
QQ
  • QQ点击这里给我发消息
微信客服
  • 微信客服
回到顶部